Italiano
120.000 €

Briga Novarese - bilocale arredato

2 locali in vendita • Briga Novarese - via gianni rodari, 3
Bilocale arredato in ottimo stato con balcone vivibile – Briga Novarese –

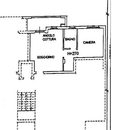
In palazzina di circa 20 anni, al primo piano servito da ascensore, proponiamo bilocale in condizioni eccellenti, completo di arredi come da fotografie e pronto da abitare.

Zona giorno (open space)

L’ingresso apre su una zona living ampia e luminosa con:

cucina lineare moderna in finitura chiara, completa di pensili e colonne, forno incassato e piano cottura

area pranzo con tavolo in vetro e sedute

spazio soggiorno ben organizzato, con zona libreria/armadiatura a parete (come da foto), perfetta anche come angolo studio

La luce naturale è uno dei punti forti: la zona giorno è valorizzata da grandi porte finestre e serramenti scuri che danno un taglio elegante e contemporaneo, oltre a un’illuminazione d’effetto con lampade a sospensione.

Balcone vivibile

Dal soggiorno si accede a un balcone coperto e sfruttabile, ideale per tavolino e sedute (come in foto), con affaccio gradevole e riservato sul verde.
Presente anche un vano tecnico esterno dove si trova la caldaia.

Disimpegno, bagno e lavanderia
Un comodo disimpegno porta alla zona servizi:
bagno finestrato con finiture neutre e ampio box doccia in cristallo
ripostiglio/lavanderia separato, pratico per gestione casa e pulizie
Camera matrimoniale
La camera è accogliente e curata, con:
letto matrimoniale
doppia armadiatura
arredo completo con comò e comodini

Note importanti:
Venduto arredato come da fotografie
Nessun box
Nessuna cantina

APE in fase di aggiornamento poiché è stata installata nuova caldaia a condensazione
Caratteristiche principali
Codice
A2026-02RF
Città
Briga Novarese
Categoria
2 locali
Prezzo
120.000 €
Spese condominiali
550 € / anno
Locali
2
Camere
1
Bagni
1
Mq
62
Balconi
1
Mq Balcone
5
Classe energetica
E
122,66
Stato Immobile
Ottimo
Grado
Medio
Posizione
Periferia
Panorama
Vista Aperta
Orientamento
Est
Lati Liberi
2
Giardino
No
Arredi
Arredato
Tipo Soggiorno
Soggiorno
Tipo Cucina
Angolo Cottura
Riscaldamento
Autonomo
Tipo Riscaldam.
Caldaia a Condensazione
Tipo Impianto
Radiatori
Fonte Energetica
Metano
Acqua Calda
Autonoma
Raffrescamento
No
Infissi
Legno Doppio Vetro
Serramenti
Buono
Persiana
Tapparella Legno
Pavim. Giorno
Gres Porcellanato
Pavim. Notte
Gres Porcellanato
Pavim. Cucina
Gres Porcellanato
Pavim. Bagno
Gres Porcellanato
Accesso Disabili
Nessuna Barriera

Accessori: Ascensore, Doppi Vetri, Impianto Satellitare, Lavanderia, Parco Condominiale, Porta Blindata, Ripostiglio, Veranda

Distanze
Posizione
Centro500 m
Lago5 km
Parco pubblico500 m
Istruzione
Scuola materna500 m
Scuola elementare500 m
Altri servizi
Banca500 m
Chiesa500 m
Farmacia500 m
Mappa
via gianni rodari 3, Briga Novarese (NO)
Condividi su
Cookie preference