Italiano
345.000 €

MIASINO - trilocale vista lago in residence con piscina

3 locali in vendita • Miasino - REGIONE CIRISEGNO, 1
“Vivere il lago dall’alto: terrazzi panoramici, camino acceso e tramonti sull’Isola di San Giulio”

Miasino – Lago d’Orta
Residence “La Torre”

Elegante trilocale panoramico con terrazzi, camino e piscina vista lago (nuova 2025)

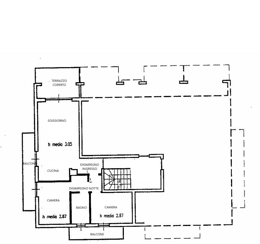
In posizione dominante sul Lago d’Orta, nel comune di Miasino, località Carcegna, all’interno dell’esclusivo Residence La Torre, proponiamo in vendita un raffinato appartamento trilocale situato al secondo ed ultimo piano, con tripla esposizione est–sud–ovest e vista lago aperta e scenografica.

Fin dall’ingresso l’abitazione regala un’immediata sensazione di armonia e luce: il disimpegno introduce alla zona giorno, dove la porta finestra della cucina incornicia una vista mozzafiato sul lago, con lo sguardo che spazia dalla Torre del Buccione a Villa Crespi, fino alla penisola di Orta San Giulio.

Il soggiorno con angolo cottura, elegantemente arredato e perfettamente integrato negli spazi, è ampio e luminoso, impreziosito da un camino funzionante che rende l’ambiente particolarmente accogliente nelle stagioni più fresche e valorizza la vivibilità dell’immobile durante tutto l’anno.
Le grandi aperture vetrate creano una continuità naturale tra interno ed esterno, enfatizzando il rapporto con il paesaggio.

La zona giorno si apre su:

un balcone esposto a sud con affaccio sulla nuova piscina panoramica,

uno splendido terrazzo coperto esposto a ovest, ideale per pranzi e cene all’aperto, con vista sull’Isola di San Giulio e tramonti di rara bellezza.

La zona notte, ben separata, è composta da:

bagno elegante e curato, completamente arredato, dotato di box doccia multifunzione con funzione sauna,

disimpegno con armadio a muro,

cameretta con due posti letto, scrivania e arredi su misura, con accesso al balcone e vista sul parco condominiale,

camera padronale con armadiatura dedicata, accesso al balcone e magnifica vista lago.

L’appartamento presenta finiture di livello superiore:

parquet in tutta l’abitazione,

impianto di filodiffusione musicale,

serramenti e persiane in alluminio,

riscaldamento autonomo con caldaia recente,

camino perfettamente funzionante.

L’immobile viene venduto completamente arredato, ad eccezione di pochi effetti personali, risultando pronto da vivere sin da subito.

Il Residence La Torre è dotato di una piscina panoramica vista lago di nuova realizzazione (anno 2025), con area verde in fase di completamento entro la primavera.
Disponibile parcheggio auto condominiale.

Soluzione ideale come prima casa, residenza di villeggiatura o investimento di qualità, in uno dei contesti più affascinanti e ricercati del Lago d’Orta.
Caratteristiche principali
Codice
A2026-01MB
Città
Miasino
Categoria
3 locali
Prezzo
345.000 €
Locali
3
Camere
2
Bagni
1
Mq
84
Posti auto
1
Balconi
2
Mq Balcone
12
Terrazzi
1
mq Terrazzo
10
Piano
2
Classe energetica
In fase di valutazione
Stato Immobile
Ottimo
Grado
Signorile
Posizione
Lago
Panorama
Vista Lago
Orientamento
Est Sud Ovest
Lati Liberi
3
Giardino
Comune
Arredi
Arredato
Tipo Soggiorno
Doppio
Tipo Cucina
A Vista
Riscaldamento
Autonomo
Tipo Riscaldam.
Caldaia a Condensazione
Tipo Impianto
Aria
Fonte Energetica
Metano
Acqua Calda
Autonoma
Infissi
Alluminio Doppio Vetro
Serramenti
Ottimo
Persiana
Persiana Metallo
Pavim. Giorno
Parquet
Pavim. Notte
Parquet
Pavim. Cucina
Parquet
Pavim. Bagno
Gres Porcellanato

Accessori: Antifurto, Armadio a Muro, Camino, Cancello Elettrico, Doppi Vetri, Filo Diffusione, Impianto Satellitare, Parco Condominiale, Piscina, Porta Blindata, Ripostiglio, Tripli Vetri, Veranda

Distanze
Posizione
Lago2 km
Impianto di risalita10 km
Mezzi di trasporto
Stazione di servizio1 km
Altri servizi
Banca1 km
Chiesa500 m
Farmacia1 km
Supermercato2,5 km
Mappa
REGIONE CIRISEGNO 1, Miasino (NO)
Video
Condividi su
Cookie preference